Как сделать скамейку в беседку своими руками
Содержание:
- Сборка лавочки
- Что понадобится для работы
- Что надо для работы?
- Что необходимо предусмотреть при выборе садовой скамейки
- Составление чертежа
- Определение конструкции
- Фото оригинальных скамеек (варианты для дачи и сада)
- Составление чертежа
- Инструкция по самостоятельному изготовлению
- Крепление самодельной деревянной лавки в беседке
- Чертеж скамейки
- Варианты и виды
- Проект скамьи
- Выбор места для расположения садовой скамейки
- Выводы
Сборка лавочки
Одним из самых интересных этапов постройки скамьи для беседки с мангалом является ее сборка. Постепенно скамейка приобретает очертания готового изделия. Монтаж начинается с ножек. Их необходимо соединить друг с другом поперечинами. Для скрепления используют саморезы.
Бруски для ножек следует выбирать особенно тщательно. Это позволит повысить устойчивость скамьи в целом.

К ножкам необходимо крепить доски сидения и спинки. При недостаточной длине саморезов необходимо выполнить отверстия чуть большего размера, чем шляпки самореза. С другой стороны рекомендуется выполнить фиксаторы.
В конце ножки скрепляют друг с другом. Как только скамья будет собрана, на ее поверхности необходимо нанести специальный состав, который исключит гниение и появление грибка. Также конструкцию покрывают лаком. После высыхания лавочка готова к использованию.

Что понадобится для работы
Какие инструменты необходимо применять в ходе работ? Как следует выбирать материалы? Для создания удобной и приятной на вид скамейки понадобится провести определенную работу. Сначала требуется изучить технологию ее изготовления. Стоит рассмотреть простой мастер-класс. В нем будет объясняться схема элементарной модели скамьи.
Конструкция будет иметь такие размеры:
- длина сидушки и спинки составит 160 см;
- сидения будет располагаться на высоте 40 см;
- вся скамейка выполняется высотой 95 см;
- оптимальная ширина сидения равна 500 мм.
На такой скамейке можно разместить четырех человек.
Чтобы выполнить лавку для беседки своими руками, стоит подготовить определенные инструменты и материалы. Их список не так велик:
- Доски, имеющие размеры 160х15 см. Необходимо подобрать несколько заготовок – 3 для сидушки и 2 для спинки.
- В качестве элементов для держателей лучше выбрать бруски толщиной 40 мм.
- Саморезы.
- Лак и грунтовка.
- Наждачка.
- Электрошуруповерт.
- Рубанок.
Лучше, если доски будут подобраны необходимого размера. Если таковых не найдется, можно воспользоваться электролобзиком. Все поверхности следует обработать грунтовкой и лаком или краской. Такая мера позволит существенно продлить срок службы конструкции.
Совет! Укрепить скамейку можно брусьями. В этом случае она окажется более долговечной и прочной.
Что надо для работы?
Для того, чтобы скамейка своими руками превратилась в приятную и занимательную работу, надо предварительно изучить технологию её изготовления. Предлагаем рассмотреть подробный мастер класс работы над самой простой моделью. Её конструкция следующая: длина спинки и сидения составляет 1600 мм, высота сидения – 400 мм, высота всей скамейки – 950 мм, ширина сидения – 500 мм. На этой мебели одновременно смогут разместиться 4 взрослых человека.

Для изготовления садовой скамьи нужны такие инструменты и материалы:
- деревянные доски размером 1600 мм на 150 мм. Для спинки надо будет 2 заготовки и 3 для сидения;
- заготовки для ножек и держателей для спинки нужны толщиной 35-40 мм, размером 900 на 150 мм;
- саморезы;
- электрорубанок (он поможет обработать фаски и отшлифовать доски);
- для раскроя досок понадобится электролобзик;
- шуруповерт;
- наждачная бумага;
- грунтовка и лак.
Доски лучше покупать сразу нужного размера, а если таковых нет в продаже, то придется древесину колоть с помощью торцовочной пилы или электролобзика. Обработка поверхностей специальной грунтовкой и лаком существенно продлит жизнь садовой скамейке. Конструкцию можно усилить с помощью брусьев, тогда она будет еще надежнее и долговечнее.

Что необходимо предусмотреть при выборе садовой скамейки
Скамейка для беседки из дерева в садовом искусстве используется не просто, как место для отдыха, но и является значимым элементом в продолжение общей архитектурной композиции сада, где главный элемент сама постройка.
Какой должна быть садовая скамейка:
- К постройке скамейки необходимо подходить точно так же, как и оформлению дома.
- Все дополнительные элементы должны быть максимально функциональными и удобными и гармонировать с общим ландшафтным дизайном.
- Весь садовый участок, включая декоративную беседку со скамейкой, это тот же дом под открытым небом.
Рассмотрим подробнее:
- Привлекательный внешний вид, скамейка должна гармонировать с общим дизайном сада.
- Многофункциональность и удобство, здесь необходимо тщательно продумать расположение беседки.
- Безопасность конструкции, это самый основной параметр, особенно, если в доме есть маленькие дети.
- Практичность, также очень важный параметр. Рекомендуется изготовлять из материала, который адаптирован к температурным перепадам, негативной внешней среде и прост в уходе.
Составление чертежа
После выбора места, модели и габаритов необходимо перейти к следующему этапу — подбору или созданию собственного чертежа. Готовые проекты вполне можно адаптировать таким образом, чтобы желаемый элемент ландшафтного дизайна идеально вписался в экстерьер любого участка. Чертёж должен проиллюстрировать габариты изделия. Начинающим мастерам не рекомендуется использовать сложные эскизы, лучше выбирать классические типы изделий.
Рекомендуем ознакомиться с приминением садовых фигур в ландшафтном дизайне.
Проектирование садовой уличной мебели позволит владельцу иметь общее представление о внешнем виде будущей конструкции, а также наглядно увидеть особенности сборки данной модели. Вдобавок чертёж поможет сориентировать мастера в количестве материала, необходимого для создания лавки. Проект необходимо расчертить на большом листе бумаге. Чертежи, загруженные с интернета, должны быть понятными и содержать достоверные замеры.

Определение конструкции
При выборе и определении конструкции скамейки или лавочки, необходимо сделать необходимые замеры внутри беседки, чтобы впоследствии скамейка поместилась в нее. Так же необходимо придерживаться принятых нормативов, согласно которых высота скамейки должна быть в пределах 40 – 50 см, ширина ее сидения – не меньше 30 – 40 см. В итоге необходимо изготовить чертеж скамейки, на котором необходимо тщательно согласовать размеры всех ее деталей. Одной из характерных ошибок начинающих домашних мастеров является игнорирование толщины материала (досок, брусьев, труб и т.д.), а также высоты выступающих головок болтов, гаек, в результате чего окончательная сборка изделия может не получиться.
Простейшая конструкция лавочки предусматривает наличие опор в виде вертикально вкопанных (зацементированных) обрезков бревен или полубруса, с уложенной на них и закрепленной гвоздями проструганной доской (толщиной 40мм, 50мм) или полубрусом. Желательно выровнять по строительному уровню как вертикальность установки опор, так и горизонтальность укладки доски. Другой простейший вариант – когда вертикальные опоры лавки не вкапываются, а жестко прикрепляются длинными гвоздями, скобами или шпильками к конструкции самой беседки, к ним крепится горизонтально сидение в виде все той же доски или полубруса.
Фото оригинальных скамеек (варианты для дачи и сада)
Все могут себе представить, какой вид имеет самая обычная скамейка, но не всем простота по душе и большинство останавливает свой выбор на оригинальных решениях. Всем хочется иметь то, чего нет, например, у соседа по даче. Практически все дачники начинают с украшения дачного или приусадебного участка, и здесь имеется так же много вариантов. Как вариант, можно заняться дизайном участка с установки скамейки, предварительно определившись с местом отдыха. Ведь место отдыха не нужно потом, оно необходимо сейчас. Поэтому, дизайном этого места следует заняться на первых этапах процесса украшения дачного или приусадебного участка и лишь потом приступать к дизайну остальной части территории.
Как правило, дачники очень сильно увлечены выращиванием различных зеленых насаждений и цветов. Особенно, их много возле построек. Как вариант, можно объединить насаждения с зоной отдыха, установив скамейку не далеко от дачи. В данном случае, все будет органично смотреться: и зеленые насаждения, и клумбы с цветами, и оригинальная скамейка.
Две клумбы из досок и между ними скамейка
Вариантов огромное множество: от самых простых, до самых мудреных. Самый простой вариант может состоять из двух деревянных ящиков, в которые высажены цветы, и двух досок, сооруженных между этими ящиками. Доски обязательно должны быть оструганными и хорошо зашкуренными. Эту конструкцию можно расположить непосредственно возле стенки дачи. На стенку можно закрепить пару таких же оструганных досок, которые послужат своеобразной спинкой. Вместо деревянных ящиков можно установить бетонные тумбы, которые смогут прослужить гораздо дольше деревянных элементов.
Садовая скамейка-клумба
Подобную конструкцию соорудить очень просто, а главное быстро. Что касается досок, то их можно купить готовые или изготовить под размер самому, используя не обработанные доски. Но в данном случае, придется потрудиться, зато скамейка ничего не будет стоить, а результат обязательно порадует. Если используются бетонные вазоны для цветов, то доски можно закрепить при помощи металлических уголков. Единственная проблема – это сложность сверления отверстий в бетоне. Ни в коем случае нельзя использовать перфоратор, так как вазон, даже бетонный, запросто расколется, тем более, если он изготовлен самостоятельно.
Вазоны в качестве ножек
Можно доски не крепить, а вместо досок положить огромное бревно, которое крепить не обязательно, если правильно его установить.
Как уже было сказано выше вариантов множество, и они создаются на основе реальных возможностей, которыми располагает хозяин дачи. Как вариант, можно просто установить лавку для отдыха вдали от цветов и зеленых насаждений. Ведь ни для кого не секрет, что в цветах и между листьями растений прячутся различные насекомые, которые никак не располагают к отдыху, а наоборот, заставляют оставить после себя наихудшие воспоминания об отдыхе.
Скамейка из досок — интересный вариант
В качестве лавочки можно применить пустотелые блоки, в пустоты которых просто вставляются обработанные доски, которые смогут послужить за сидения.
Скамейка из пустотелых блоков и бруса
Чтобы было удобно сидеть, острые углы блоков следует округлить. Хорошо, если эти блоки окажутся тяжелыми и большими. Если блоки маленькие, то их можно скрепить шпильками в одно целое.
Как сделать садовую скамейку своими руками
Watch this video on YouTube
Составление чертежа
После выбора места, модели и габаритов необходимо перейти к следующему этапу — подбору или созданию собственного чертежа. Готовые проекты вполне можно адаптировать таким образом, чтобы желаемый элемент ландшафтного дизайна идеально вписался в экстерьер любого участка. Чертёж должен проиллюстрировать габариты изделия. Начинающим мастерам не рекомендуется использовать сложные эскизы, лучше выбирать классические типы изделий.
Рекомендуем ознакомиться с приминением садовых фигур в ландшафтном дизайне.
Проектирование садовой уличной мебели позволит владельцу иметь общее представление о внешнем виде будущей конструкции, а также наглядно увидеть особенности сборки данной модели. Вдобавок чертёж поможет сориентировать мастера в количестве материала, необходимого для создания лавки. Проект необходимо расчертить на большом листе бумаге. Чертежи, загруженные с интернета, должны быть понятными и содержать достоверные замеры.

Инструкция по самостоятельному изготовлению
Вроде бы такая элементарная вещь — скамья. Сел, оперся на спинку, вытянул ноги, отдохнул. Но если задуматься над её конструкцией, то возникнет вполне логичный вопрос: «Как сделать так, чтобы она не опрокинулась назад?».
Чтобы правильно на него ответить, необходимо изучить опыт профессионалов и любителей, которые уже изучили данный момент. Ниже мы рассмотрим пример строительства деревянной скамейки для беседки.
Строительный материал и инструмент
Для изготовления скамейки нам понадобится:
- Доски (можно необрезные);
- Циркулярная пила;
- Фреза;
- Болгарка со шлифовальным кругом;
- Шуруповерт;
- Саморезы.
Из каких частей состоит скамейка
Вся работа заключается в том, чтобы из доски сделать четыре части скамейки, после чего их все соединить. Для создания лавки понадобится выпилить:
- Столешницу (сиденье);
- Перемычку (перевязку);
- Две ножки.
Все части представлены на фотографии ниже. Прежде чем начинать работу с деревом, необходимо создать чертеж той лавки, которая вам нужна. «Абы какой» размер не подойдет, необходимо снять размеры с беседки, а затем уже проектировать наше изделие.
Видео
Ниже будут приведены два подхода к изготовлению лавки (любительский) и скамейки (профессиональный). Оба предмета делаются своими силами из классического строительного материала — дерева, но подходы совершенно разные, как и сам конечный результат.
В первом видео будет показана та лавка, которая описана выше. Именно это видео научит вас делать её своими руками. Второе же больше для саморазвития, ибо далеко не у всех имеется под рукой такая мастерская, в которой можно творить (в хорошем смысле этого слова) такие вещи.
Любительский подход
Видео представлена каналом «Мастерская Сергея Кудравца». В нём Сергей подробно рассказывает про то, как из необрезной сосновой доски сделать надежную и простую лавочку. Вышеописанный список строительного материала и инструментов как раз сделан по данному видео.
Профессиональный подход
Потрясающая видео-инструкция, в которой автор показывает весь процесс изготовления деревянной скамейки. Канал называется «Приключения деревяшек», автор очень приятно делится со зрителями информацией, а сам процесс работы просто завораживает. Я лично сам смотрел просто ради саморазвития. Очень впечатлился тем, как эстетично всё режется, складывается и крепиться.
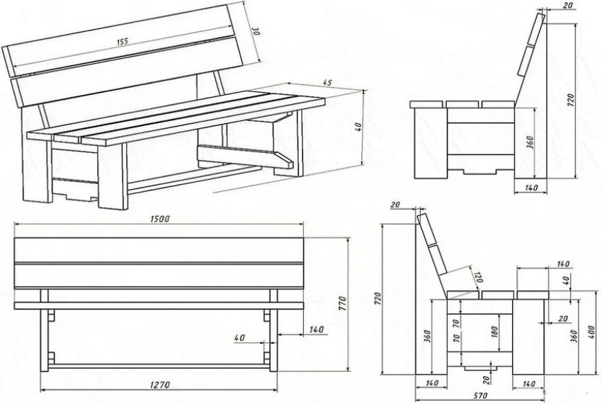
Чертеж с размерами
На просторах интернета был найдет отличный чертеж скамейки в трёх проекциях. Все чертежи были соединены в одно фото, которое находится справа от этого текста. Для увеличение нажмите на фото.
Размеры получаются следующими:
- Длина: 1,6 м;
- Ширина: 0,5 м;
- Высота до спинки: 0,95 м;
- Высота до подлокотника: 0,65 м;
- Высота до сидения: 0,4 м;
- Ширина просвета: 0,05 м;
- Ширина доски: 0,1 м (доска обрезная «сотка»).
В конечном счёте получается прекрасное место для отдыха около трёх человек. Строительным материалом является доска «сотка» и вероятнее всего брус 50 на 50 мм (автор чертежа это не указал, но по форме напоминает именно его).
Источник статьи: http://besedkis.ru/obustrojstvo/skamejka-v-besedku-svoimi-rukami
Крепление самодельной деревянной лавки в беседке
Чтобы наша лавка была надежной и крепкой, и чтобы её не украли нужно ее хорошо зафиксировать в беседке. Ставим её на свое законное место, выставляем по уровню. А делать мы это будем к полу, и к самой беседке. Ничего сложного или страшного в этом нет. Просто берем и крепим. Сейчас мы покажем, как это правильно сделать.
ШАГ 1: подгоняем по форме. Ставим лавку на свое место, и намечаем места, которые нужно подрезать. У вас их может и не оказаться, но у нас такие были. На фото показано, как мы с ними справились.
ШАГ 2: установка. Если ваша лавка в беседку получилась не по размерам беседки, то придется немного помучатся. Ведь лавочка фиксируется к доскам беседки. И если ножки будут на расстоянии от беседки, то закрепить их не получится. Нужно будет делать какие-то подкладки, чтобы потом все крепко стянуть саморезами.
ШАГ 3: фиксируем ножки. Для надежной фиксации ножек нашей лавки из дерева для беседки нужно закрепить их к бетонному полу. Для этого мы используем уголок. Отрезаем кусочек 50 мм. Сверлим в нем 4 отверстия (два на одной стороне и два на другой). Фиксируем уголок одной стороной к ножке и закрепляем с помощью двух саморезов. Берем специальные саморезы, и вкручиваем их через уголок в бетонный пол нашей деревянной беседки. Таким образом, наша ножка будет уверенно стоять, и лавочка не будет шататься.
Так проделываем с каждой ножкой. А те опоры деревянной лавки, что расположены впритык к беседке, дополнительно закрепляем саморезами к стенкам беседки. Таким образом, у нас получается множество крепежных точек, что обеспечит нам надежность и долговечность конструкции самодельной лавочки. Далее мы наведем немного красоты, и обработаем древесину для защиты от гниения.
Обработка простой деревянной лавочки для беседки
Финальный этап в изготовлении лавочки – это окончательная обработка поверхности. Мы захотели сделать закругленные углы, для более удобной посадки за стол, ну, и для красоты, конечно же. Если в процессе установки у вас получились какие-то погрешности в стыках лавки, то сейчас их нужно убрать.
ШАГ 1: шлифование. В результате установки лавочки произошла небольшая ступенька между двумя досками. Стол и лавки для беседки должны быть ровными, поэтому ровняем все стыки при помощи шлифовальной машинки.
ШАГ 2: форма лавки. Нам захотелось сделать закругленные углы, и мы это сделали. Во-первых, лавочка приобрела совсем другой вид, а во-вторых, садиться за стол стало гораздо удобней. Срезаем угол электрическим лобзиком, и зашлифовываем края шлифмашинкой или наждачной бумагой.
ШАГ 3: обработка. Заключительным этапом инструкции, как сделать лавочку в беседку, является обработка древесины морилкой. Это делается для того, чтобы защитить материал от влаги и гниения, и придать лавочке красивый внешний вид.
После окончательного высыхания раствора морилки, можно сдавать объект в эксплуатацию. Теперь наша беседка обзавелась красивой и практичной лавочкой. Уже скоро наша беседка с лавочками и столом будет полностью завершена. Осталось немного подождать.
В следующей статье мы сделаем практичный и надежный стол из металлического профиля и дерева. Оставайтесь с нами, и вы научитесь делать даже самые сложные вещи.
Чертеж скамейки
Первое, что надо для работы – это идея, её точное представление, перенесение на бумагу и создание чертежа. Это поможет рассчитать сколько надо материала. Замеры лучше делать непосредственно в беседке на том месте, где планируется поставить лавочку. Наметив основные параметры (высота, длина, ширина) можно приступать к чертежу. Высотой считается расстояние от пола беседки до сидения, стандартное значение – 60 см.

Чертеж скамьи — прямо
Если скамейка создается для детей, то она должна быть, соответственно, ниже. Если будет спинка, то надо обдумать её высоту и угол наклона. Скамейка для дачи своими руками из дерева чертежи можно найти готовые в интернете или сделать свои, основываясь на простой и понятной модели. На основе представленных ниже чертежей можно создать свой чертеж или воспользоваться уже готовым.

Чертеж скамьи — сбоку
Основной чертеж, представленный на чертежах – это скамейка, которую можно создать всего за 1 день. Это простая и удобная модель. К тому же стоимость её будет невысокой. Однако, не стоит слепо следовать чертежу – это схема, набросок, от которого нужно отталкиваться. Если дать волю фантазии, то можно создать уникальную и неповторимую вещь для обустройства своего сада.

Чертеж скамьи — сверху
Варианты и виды
Смысл деревянных скамеек и лавок примерно один и тот же — посадить людей на ровную поверхность, чтобы было удобно и безопасно. В зависимости от вашего желания, можно в конструкцию лавки можно добавить спинку, тогда посиделки будут более удобными (хотя это и не всегда уместно).
Массивная лавка из дерева
Ниже будут представлены фотографии вариантов обустройства беседок скамейками. Будут показаны примеры со спинками и без, а также из комбинации материалов — дерева и металла.
Лавка без спинки
Самый простой, дешевый и надежный вариант это лавка. Она идеально вписывается в любой интерьер, не занимает дополнительного пространства и позволяет посадить за стол максимальное количество людей.
Как и в любой мебели для сидения, одним из самых главных показателей является её устойчивость.
Вы удивитесь, когда начнете проверять дачную мебель своих знакомых или даже свою, и не найдете практически ни одного предмета, который бы идеально стоял на поверхности (если вы этим вопросом не занялись перед этим).
Лавка может быть ровной, а вот поверхность пола уже нет. Возникает сразу же ряд вопросов — менять пол, сидеть на неустойчивой лавке или доработать её под неровность пола?
Вот такие проблемы стоят перед дачниками, когда заходит вопрос организации зоны отдыха. Поэтому покупка или самостоятельное изготовление хорошей лавки может оказаться труднее, чем вы рассчитали изначально.
Скамейка со спинкой
Вариант со спинкой более удобен и эстетичен. Её конструкция заметно сложнее, по сравнению с лавкой. Для её установки может понадобится упор на стену или «мёртвое» крепление к полу.
Поэтому прежде чем что-либо смотреть, необходимо снять размеры внутренней площади беседки и задать себе вопрос — какой оптимальный размер скамейки должен быть и как её разместить.
В плане внешнего вида и качества они могут быть абсолютно разные.
Это может быть толстый массив дуба, который простоит еще 50 лет, а может быть конструкция из досок, которые будут подгнивать, деформироваться и требовать дополнительного ухода.
Существует множество идей (я видел более 30), как можно сделать скамейку из старой мебели — стульев, кровати, комода и тому подобного. Если подойти к этому вопросу творчески, то результат будет не таким уж и «колхозным», как кажется на первый взгляд. Пару примеров находятся ниже.
Из старых стульев
Из старой кровати
Из дерева и металла
Подобные пары стола и скамеек вы могли видеть на городских улицах, парках и скверах. Чаще всего это металлическое основание и деревянная столешница (если речь о столе) или деревянное сидение и спинка (если речь о скамье)
Такая конструкция позволяет уменьшить размеры мебели, что крайне важно в ограниченном пространстве беседки
Складная
Удобный варианта для дачи это складная скамейка. Благодаря своей конструкции, её очень легко переносить с места на место — особенно это актуально для тех, кто постоянно будет носить эту лавку из дома в беседку и наоборот.
Если такой вариант решит ваши проблемы подобного плана, то за 1850 рублей её можно купить в магазине «Wooden-World».
Комплект стол, скамейки и стулья
Я бы хотел с ними вас также познакомить, вполне вероятно какой-нибудь из примеров вас зацепит и в будущем украсит интерьер вашей беседки.
Комплект стол, лавки и стулья из лиственницы
Проект скамьи
Как сделать лавку для беседки с мангалом? Любое изделие начинается с проекта, а точнее – с чертежа. Перед началом работ необходимо провести тщательный замер параметров беседки с мангалом. Учитывайте, что древесина может дать усадку. Основная величина, необходимая для чертежа – высота скамьи. Оптимальной считается лавочка высотой в 40- 60 см. Регулировать величину можно в зависимости от строения беседки и параметров домочадцев.
Как правило, стены или перегородки в беседках с мангалом устраивают по периметру всех опор. Поэтому спинки для лавочек необязательны. Но если вы планируете создать стационарные скамьи со спинками – заранее рассчитайте их длину и угол наклона.
Если вы впервые создаете мебель из дерева – используйте наиболее простые конструкции. Несложные проекты можно закончить за один день, даже не имея профессиональных навыков.
Выбор места для расположения садовой скамейки
Как выбрать оптимальное место для скамейки в беседке
Перед тем, как покупать, или строить самостоятельно конструкцию, необходимо определиться с выбором места
Это важно, так как скамейка должна соответствовать ландшафтному направлению всей территории
Итак:
- Выбор предусматривает наличие наиболее удобных зон для отдыха. Это должно быть тихое уютное местечко, откуда будет открываться вид на необычные участки сада.
- Можно рассмотреть территорию сада, которая расположена вдоль длинных дорожек. Это логично, после длительной прогулки приятно будет отдохнуть.
- Отличным местом станет размещение около зеленой изгороди, фонтана, декоративной арки или искусственного пруда.
- Если садовый участок используется для посадки огородных культур, то логично расположить скамейку прямо около огорода.
- Место расположения скамейки и беседки с декоративными решетками, также напрямую зависит от того, как используется загородный дом. Для сезонного использования на летний период, лучше всего расположить в северной части или около деревьев, в тени.
Выводы
Изготовление скамьи для беседки – совершено простая задача. Особенно если вы уже построили перголу своими руками, и знаете все нюансы строительства. Все, что от вас требуется – это закупить нужные материалы, выполнить точный чертеж и ознакомиться с технологией сборки, описанной в нашей статье.
Также немаловажно выбрать подходящий тип конструкции. Например, деревянная скамья гораздо практичнее и доступнее, а в случае с металлом придется привлекать сторонних специалистов или уметь пользоваться сварочным аппаратом
Есть много интересных альтернативных идей создания лавочек – например, из камня или поддонов. Но какой бы ни была скамейка, факт остается фактом. Она быстро станет любимым местом отдыха для всей семьи, а пребывание в беседке сделает комфортным и уютным.